Porzione di bifamiliare in vendita

Correzzola, Via Bosco - Bosco
€ 165.000
5 locali 5 locali
166 Mq 166 Mq
1 bagno 1 bagno

Porzione di bifamiliare in vendita

Correzzola, Via Bosco - Bosco

Descrizione annuncio

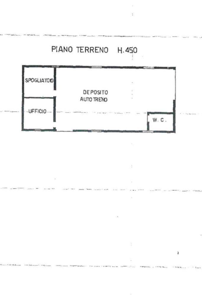
Correzzola: In zona tranquilla, immersa nella campagna, porzione di bifamigliare disposta in due livelli con ampio scoperto e garage di 160 mq. L'immobile presenta al piano terra ampio ingresso con cucina saparata dal soggiorno entrambi dalle dimensioni generose, piccolo ripostiglio ricavato nel sottoscala. Le scale conducono al piano primo, dove troviamo il reparto notte con tre camere di cui due matrimoniali ed un bagno ristrutturato circa un anno fa con porta finestra che da sul terrazzo. A completare garage dalle dimensioni generose.

Mostra tutto

Nelle vicinanze

Trasporto pubblico Trasporto pubblico
Cona Veneta
Cona Veneta
1,6 Km
Scuole Scuole
Scuole
1,6 Km
Bar Bar
Bar
2,9 Km
Mostra tutto

Caratteristiche

Rif.:
61119247
Piano:
2 di 2 (Piano su più livelli)
Box:
1
Posti auto:
6
Terrazzi:
2
Camere da letto:
3
Mostra tutto
Prezzo Prezzo
€ 165.000
Rata mutuo Rata mutuo
€ 784 / mese
Spese annue Spese annue
€ 0
Proponi il tuo prezzoProponi il tuo prezzo

Classe Energetica

G
G
G
G
G
G
G
G
G
EP globale non rinnovabile:
225.80 kW h/m² anno
Anno di costruzione:
1972
Riscaldamento:
Autonomo
Tipo impianto:
A radiatori
Tipo alimentazione:
Gasolio

Ti interessa visionare l'immobile?

Fissa un appuntamento  Fissa un appuntamento

Richiedi informazioni

Clicca su Leggi per aprire l'informativa
* Questi campi sono obbligatori

Calcola il tuo mutuo

Semplice e senza impegno
Anticipo

( % )
Mutuo

( % )

pochi semplici passi

inserisci i tuoi dati
Questionario completato
Grazie per aver richiesto un appuntamento senza impegno con un nostro Consulente del Credito e Assicurativo.

Hai inserito correttamente tutti i dati necessari e a breve riceverai una e-mail con un link da convalidare per inviare i tuoi dati.
Affiliato
Immobilsole Srl
Via Gauslino, 43 35028 Piove Di Sacco (PD)

Il nostro staff


  • Achille Binato
    Affiliato

  • Anita Cecconello
    Collaboratrice

  • Valeria Fontolan
    Responsabile
Via Gauslino, 43 35028 Piove Di Sacco (PD)
Zona: Piove di Sacco-Pontelongo-Arzergrande-Brugine
Mostra su mappa
Orari: dal lunedì al venerdì: 9.00 - 12.30 - 14.30 - 19.30; sabato 09.00 - 13.00
Affiliato
Immobilsole Srl
Via Gauslino, 43 35028 Piove Di Sacco (PD)

2026 Tecnocasa Franchising S.p.A. - P. IVA 08365160152 - Via Monte Bianco 60/A 20089 Rozzano (MI). Ogni agenzia ha un proprio titolare ed è autonoma. Privacy policy | Policy utilizzo | Cookie policy