Multilocale in vendita

Codevigo, Via Vallona - Conche
€ 149.000
Prezzo aggiornato
10 locali 10 locali
1030 Mq 1030 Mq
2 bagni 2 bagni

Multilocale in vendita

Codevigo, Via Vallona - Conche

Descrizione annuncio

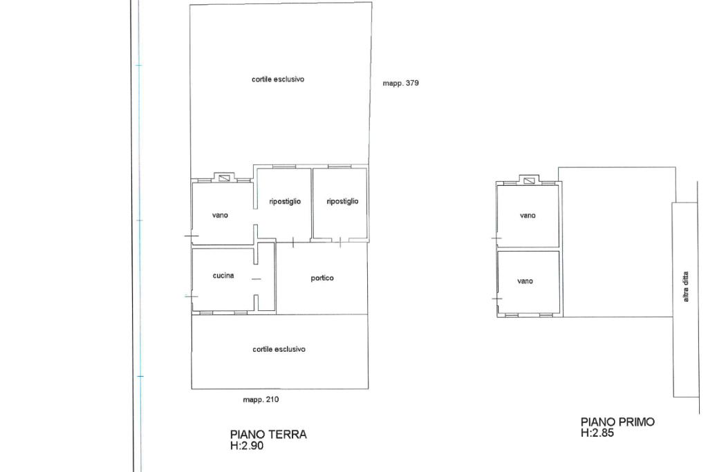
Codevigo: in località Conche, immerso nella Laguna Veneta, in prossimità della spiaggia della Boschettona e dei Casoni delle Sacche (patrimonio UNESCO dal 2010), proponiamo compendio immobiliare composto da intera bifamiliare, edificio storico - testimoniale costruito ante '67, magazzini e ampio scoperto di circa 5.000 mq. Il tutto con possibilità di essere adibito ad uso abitativo ma ideale anche come agriturismo, B&B, rimessaggio roulotte e barche o ricovero mezzi con abitazione. Opportunità di investimento unica vista anche la vicinanza a tre darsene che si affacciano direttamente in Laguna e diversi percorsi di cicloturismo.

Mostra tutto

Nelle vicinanze

Ricariche auto elettriche Ricariche auto elettriche
BeCharge Ristorante Hotel da Toni
1,5 Km
Scuole Scuole
Scuole
620 m
Farmacia Farmacia
Farmacia Conche
1,4 Km
Farmacia
2,7 Km
Bar Bar
Balabuska
1,5 Km
Bar Fortuna
2,7 Km
Ristoranti Ristoranti
Ristorante Pizzeria Giosuè
2,7 Km
Agriturismo Vecchia Fogolana
2,8 Km
Mostra tutto

Caratteristiche

Rif.:
61097682
Piano:
Su più livelli di 2
Totale piani:
2
Box:
8
Posti auto:
20
Camere da letto:
5
Mostra tutto
Prezzo Prezzo
€ 149.000
Rata mutuo Rata mutuo
€ 683 / mese
Proponi il tuo prezzoProponi il tuo prezzo

Altre caratteristiche

Classe Energetica

Questo immobile è esente da classe energetica
Anno di costruzione:
1960
Riscaldamento:
Autonomo
Tipo impianto:
A radiatori
Tipo alimentazione:
Metano

Prezzo ridotto di €1 (4%%)

Ti interessa visionare l'immobile?

Fissa un appuntamento  Fissa un appuntamento

Richiedi informazioni

* Questi campi sono obbligatori

Calcola il tuo mutuo

Semplice e senza impegno
Anticipo

( % )
Mutuo

( % )

pochi semplici passi

inserisci i tuoi dati
Questionario completato
Grazie per aver richiesto un appuntamento senza impegno con un nostro Consulente del Credito e Assicurativo.

Hai inserito correttamente tutti i dati necessari e a breve riceverai una e-mail con un link da convalidare per inviare i tuoi dati.
Affiliato
Immobilsole Srl
Via Gauslino, 43 35028 Piove Di Sacco (PD)

Il nostro staff


  • Achille Binato
    Affiliato

  • Anita Cecconello
    Collaboratrice

  • Valeria Fontolan
    Responsabile
Via Gauslino, 43 35028 Piove Di Sacco (PD)
Zona: Piove di Sacco-Pontelongo-Arzergrande-Brugine
Mostra su mappa
Orari: dal lunedì al venerdì: 9.00 - 12.30 - 14.30 - 19.30; sabato 09.00 - 13.00
Affiliato
Immobilsole Srl
Via Gauslino, 43 35028 Piove Di Sacco (PD)

2025 Tecnocasa Franchising S.p.A. - P. IVA 08365160152 - Via Monte Bianco 60/A 20089 Rozzano (MI). Ogni agenzia ha un proprio titolare ed è autonoma. Privacy policy | Policy utilizzo | Cookie policy