Quadrilocale in vendita

Camponogara, Via VIII Marzo - Boresso
€ 280.000
4 locali 4 locali
136 Mq 136 Mq
2 bagni 2 bagni

Quadrilocale in vendita

Camponogara, Via VIII Marzo - Boresso

Descrizione annuncio

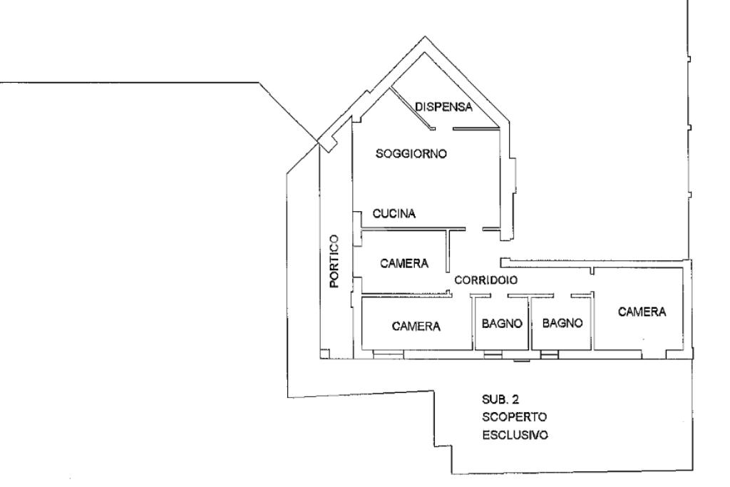
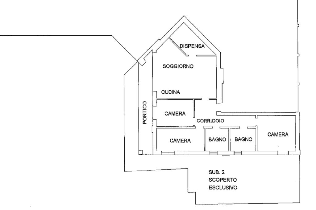
Camponogara: In località Calcroci, appartamento quadrilocale di nuova costruzione. Dall'ingresso indipendente porticato, si accede all'immobile che presenta un'ampia zona soggiorno - cucina di 40 mq. Il disimpegno conduce al reparto notte che si compone di tre camere, una delle quali matrimoniale e due bagni entrambi finestrati. A completare, collegamento interno con il garage di 24 mq e posto auto assegnato da condominio, oltre al giardino esclusivo di 100 mq, ideale per vivere i momenti all'aria aperta. L'immobile viene consegnato a lavori ultimati.

Mostra tutto

Nelle vicinanze

Trasporto pubblico Trasporto pubblico
Casello 11
Casello 11
590 m
Camponogara - Campagna Lupia
Camponogara - Campagna Lupia
1,9 Km
Trasporto pubblico
1,6 Km
Scuole Scuole
Scuole
800 m
Scuola Media Statale "Antonio Gramsci"
1,1 Km
Scuola Elementare Statale "Don Milani"
1,3 Km
Scuola Materna "Madonna di Fatima"
2,4 Km
Farmacia Farmacia
Farmacia
1,4 Km
Supermercati Supermercati
Aliper
1,5 Km
inCoop
1,6 Km
Bar Bar
Bar Commercio
3,0 Km
Ristoranti Ristoranti
Ristorante Pizzeria Vecchio Corsaro
220 m
Pizzeria Ristorantino El Sombrero
1,4 Km
Ristoranti
1,7 Km
Ristorante Pizzeria Colonda
2,7 Km
Mostra tutto

Caratteristiche

Rif.:
61155833
Box:
1
Posti auto:
1
Camere da letto:
3
Arredamento:
Assente
Condizionamento:
Autonomo
Mostra tutto
Prezzo Prezzo
€ 280.000
Rata mutuo Rata mutuo
€ 1.330 / mese
Spese annue Spese annue
€ 0
Proponi il tuo prezzoProponi il tuo prezzo

Classe Energetica

A4
A4
A4
A4
A4
A4
A4
A4
A4
EP invernale del fabbricato:
EP estiva del fabbricato:
Anno di costruzione:
2025
Riscaldamento:
Autonomo
Tipo impianto:
A pavimento
Tipo alimentazione:
Altro

Ti interessa visionare l'immobile?

Fissa un appuntamento  Fissa un appuntamento

Richiedi informazioni

Clicca su Leggi per aprire l'informativa
* Questi campi sono obbligatori

Calcola il tuo mutuo

Semplice e senza impegno
Anticipo

( % )
Mutuo

( % )

pochi semplici passi

inserisci i tuoi dati
Questionario completato
Grazie per aver richiesto un appuntamento senza impegno con un nostro Consulente del Credito e Assicurativo.

Hai inserito correttamente tutti i dati necessari e a breve riceverai una e-mail con un link da convalidare per inviare i tuoi dati.
Affiliato
Immobilsole Srl
Via Gauslino, 43 35028 Piove Di Sacco (PD)

Il nostro staff


  • Achille Binato
    Affiliato

  • Anita Cecconello
    Collaboratrice

  • Valeria Fontolan
    Responsabile
Via Gauslino, 43 35028 Piove Di Sacco (PD)
Zona: Piove di Sacco-Pontelongo-Arzergrande-Brugine
Mostra su mappa
Orari: dal lunedì al venerdì: 9.00 - 12.30 - 14.30 - 19.30; sabato 09.00 - 13.00
Affiliato
Immobilsole Srl
Via Gauslino, 43 35028 Piove Di Sacco (PD)

2026 Tecnocasa Franchising S.p.A. - P. IVA 08365160152 - Via Monte Bianco 60/A 20089 Rozzano (MI). Ogni agenzia ha un proprio titolare ed è autonoma. Privacy policy | Policy utilizzo | Cookie policy