Porzione di bifamiliare in vendita

Campolongo Maggiore, Via Basse - Bertin
€ 128.000
Prezzo aggiornato
4 locali 4 locali
130 Mq 130 Mq
1 bagno 1 bagno

Porzione di bifamiliare in vendita

Campolongo Maggiore, Via Basse - Bertin

Descrizione annuncio

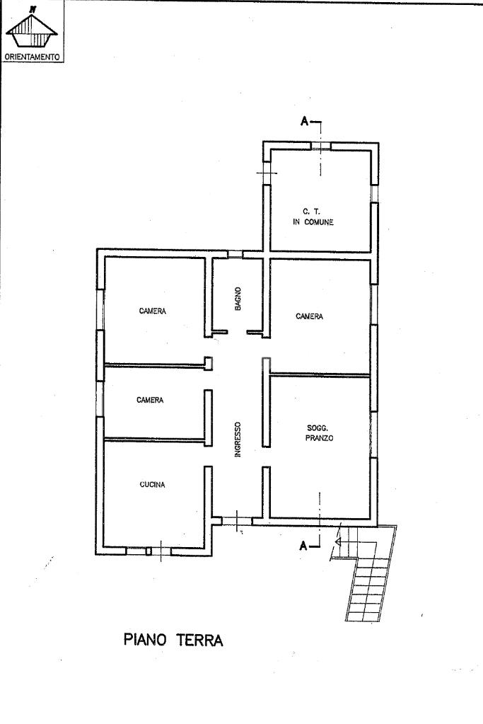
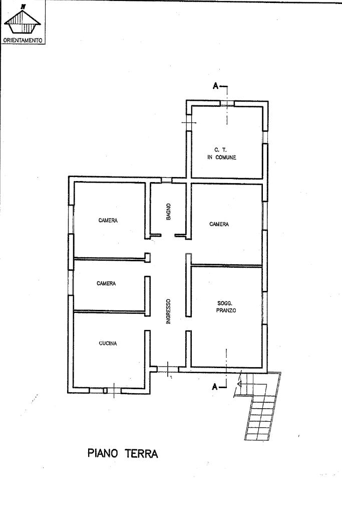
Campolongo Maggiore: in prossimità del centro paese comodo a tutti i principali servizi ed ai mezzi di trasporto, appartamento quadrilocale al piano terrra in contesto di sole due unità. L'appartamento presenta ingresso indipendente, cucina abitabile separata dalla zona pranzo soggiorno, bagno finestrato con doccia, tre camere di cui due matrimoniali. A completare scoperto esterno ad uso comune. Prossimamente foto interne.

Mostra tutto

Nelle vicinanze

Trasporto pubblico Trasporto pubblico
Campolongo Maggiore
Campolongo Maggiore
1,7 Km
Bojon
Bojon
2,1 Km
Ricariche auto elettriche Ricariche auto elettriche
Distributore Loro
2,9 Km
Scuole Scuole
Scuole
530 m
Ic Diego Valeri Scuole Medie
630 m
Ic Campolongo Maggiore Elementari Medie di Bojon
1,4 Km
Ic Campolongo Maggiore Elementari
2,4 Km
Supermercati Supermercati
Coop
780 m
Mostra tutto

Caratteristiche

Rif.:
61157815
Piano:
Terra con giardino di 2
Totale piani:
2
Posti auto:
2
Camere da letto:
3
Arredamento:
Parziale
Mostra tutto
Prezzo Prezzo
€ 128.000
Rata mutuo Rata mutuo
€ 598 / mese
Spese annue Spese annue
€ 0
Proponi il tuo prezzoProponi il tuo prezzo

Classe Energetica

F
F
F
F
F
F
F
F
F
EP globale rinnovabile:
218.97 kW h/m² anno
Anno di costruzione:
1970
Riscaldamento:
Autonomo
Tipo impianto:
A radiatori
Tipo alimentazione:
Altro

Prezzo ridotto di €1 (6%%)

Ti interessa visionare l'immobile?

Fissa un appuntamento  Fissa un appuntamento

Richiedi informazioni

Clicca su Leggi per aprire l'informativa
* Questi campi sono obbligatori

Calcola il tuo mutuo

Semplice e senza impegno
Anticipo

( % )
Mutuo

( % )

pochi semplici passi

inserisci i tuoi dati
Questionario completato
Grazie per aver richiesto un appuntamento senza impegno con un nostro Consulente del Credito e Assicurativo.

Hai inserito correttamente tutti i dati necessari e a breve riceverai una e-mail con un link da convalidare per inviare i tuoi dati.
Affiliato
Immobilsole Srl
Via Gauslino, 43 35028 Piove Di Sacco (PD)

Il nostro staff


  • Achille Binato
    Affiliato

  • Anita Cecconello
    Collaboratrice

  • Valeria Fontolan
    Responsabile
Via Gauslino, 43 35028 Piove Di Sacco (PD)
Zona: Piove di Sacco-Pontelongo-Arzergrande-Brugine
Mostra su mappa
Orari: dal lunedì al venerdì: 9.00 - 12.30 - 14.30 - 19.30; sabato 09.00 - 13.00
Affiliato
Immobilsole Srl
Via Gauslino, 43 35028 Piove Di Sacco (PD)

2026 Tecnocasa Franchising S.p.A. - P. IVA 08365160152 - Via Monte Bianco 60/A 20089 Rozzano (MI). Ogni agenzia ha un proprio titolare ed è autonoma. Privacy policy | Policy utilizzo | Cookie policy